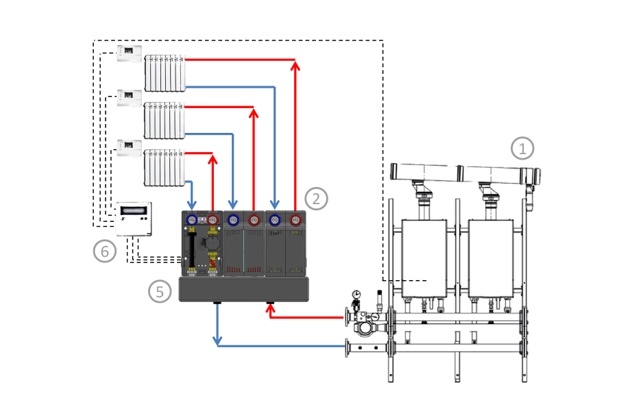
Beschreibung
Il gruppo di circolazione diretto è in grado di assicurare la giusta portata di fluido vettore e una adeguata prevalenza in tutti gli impianti di riscaldamento che necessitano di circolatore o per il carico di bollitori, dove la temperatura di mandata corrisponde a quella di lavoro del generatore.
Il gruppo è composto da ramo di mandata e di ritorno. Il ritorno impianto comprende la valvola di intercettazione impianto, termometro e valvola di non ritorno. E’ possibile escludere la valvola di non ritorno in caso di manutenzione dell’impianto. Sulla mandata c’è la valvola di intercettazione, termometro, pompa di circolazione e valvola esclusione circolatore in caso di manutenzione dello stesso. Il gruppo viene normalmente fornito con mandata e circolatore a destra. Su alcuni modelli mandata e ritorno possono essere facilmente invertite, anche direttamente sul campo.
Alcuni modelli, forniti con circolatori non modulanti, possono essere dotati di by pass idraulico lato impianto impianto per assicurare una corretta circolazione dell’acqua anche in presenza di valvole termostatiche sui corpi scaldanti. Il gruppo di circolazione miscelato a punto fisso e motorizzato sono in grado di assicurare la giusta portata e una adeguata prevalenza in tutti gli impianti di riscaldamento ove sia richiesto un controllo diretto della temperatura di mandata.
Nel miscelato p.to fisso, attraverso l’impostazione della temperatura di lavoro sulla valvola miscelatrice termostatica, si ottiene un controllo efficace e sicuro della mandata impianto dove questa sia diversa dalla mandata del generatore di calore. Attraverso l’impostazione della temperatura di lavoro sulla miscelatrice termostatica, si ottiene un controllo efficace e sicuro della mandata impianto dove questa sia diversa dalla mandata del generatore di calore. Il gruppo viene fornito di serie con una valvola miscelatrice settabile tra 20° e 43°C.
Nel miscelato motorizzato, attraverso il settaggio della temperatura di lavoro, tramite centraline elettronica, si ottiene un controllo preciso e modulante della mandata impianto dove questa sia diversa dalla mandata del generatore di calore. Perfetto da abbinare ad una centralina di controllo con gestione della sonda esterna e curve di termoregolazione.
Il gruppo è fornito di serie con circolatore Grundfos UPM3 Hybrid, ErP-Ready.



